
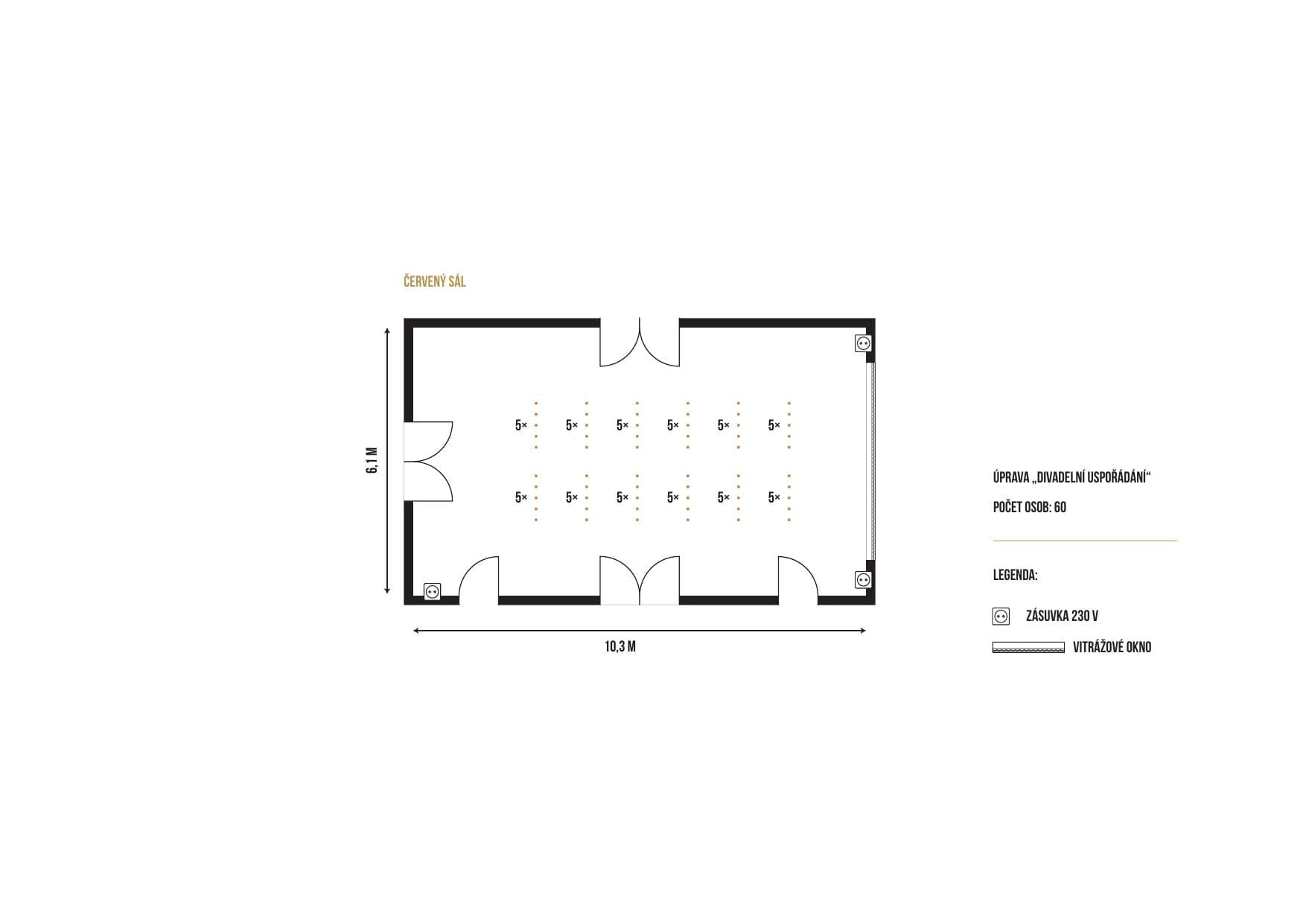
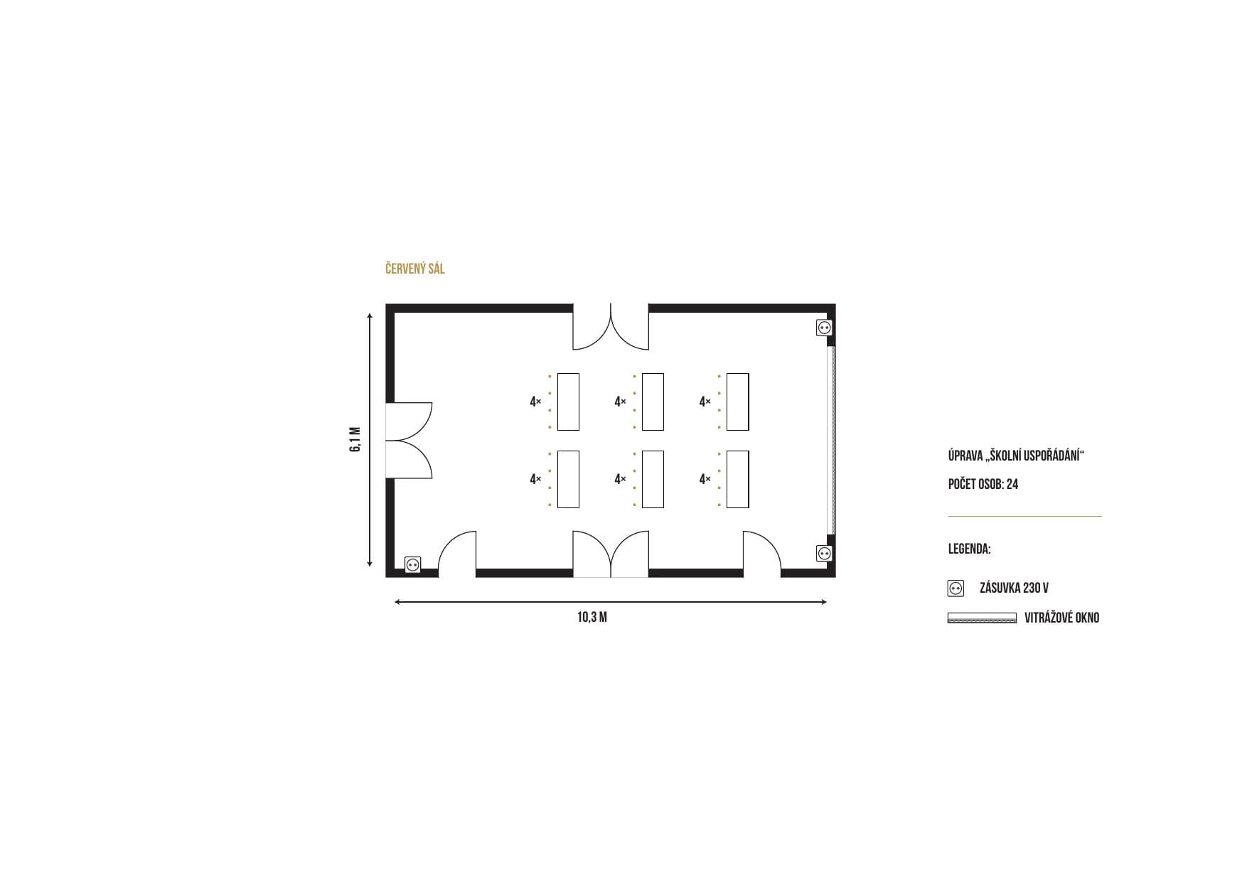
Red Hall
Looking for an elegant historic hall for a meeting or party?
Admission
Upon request
Location
Pilsen
An elegant venue with a rich history – ideal for celebrations, corporate meetings, and prestigious events
Are you looking for a unique space with an unforgettable atmosphere that has preserved its character while meeting the high standards of a modern event and conference center? The Red Lounge, with its charming stained-glass window, radiates history and is perfect for festive lunches and celebrations as well as presentations and seminars.
We will organize a complete event tailored to your wishes and requirements. We provide both modern and traditional culinary delights through catering services, a wide range of alcoholic and non-alcoholic beverages, professional service, experienced staff, all necessary equipment, and optional programs such as guided tours or a beer tapping school.
Recommended for training sessions, seminars, presentations, festive lunches, birthday celebrations, graduation parties, or weddings.
The rental price depends on your specific requirements and we will be happy to prepare a tailored offer for you.
Contact us and together we will find the best solution for your event.
Technical equipment
Room layout
FAQs
Yes. The hall can be combined with the Pilsner Urquell Hall.
Yes, it is. Parking is available in the visitors car park within the brewery premises.




